Жить свою лучшую жизнь
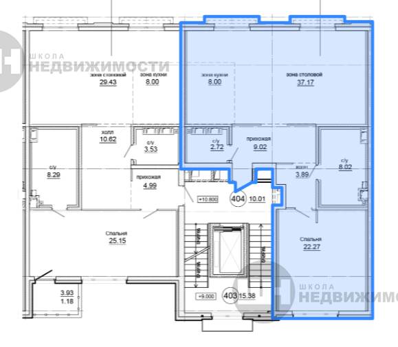
Клубный дом на набережной Невы! С видом на Неву! Окна парадных помещений выходят на воду, спален — во двор. Жители дома любуются видами Невы, а засыпают в тишине. БОЛЬШАЯ кухня-гостиная 45,17кв.м. (два окна), жилая комната 22,27 Просторная прихожая 9,02 + 3,89 холл. Два с/у 8,+2,72м2. В отделке квартиры можно воплотить ВСЕ свои мечты. Электрика: вводный щит, счетчик потребления, ввод в квартиру интернета, телевидения, телефонной и домофонной сети, с установкой радиоточки по ТУ Сантехника: без разводки водоснабжения и канализации, счетчик потребления, панельные радиаторы/конвекторы. Прочее: окна — алюминиевые с однокамерным стеклопакетом с энергосберегающим стеклом, входная металлическая дверь.














