- Главная
- База недвижимости
- Коммерческая
- Коммерческое помещение, 109.0 м²
Коммерческое помещение, 109.0 м²
Санкт-Петербург, р. Калининский, ул. Богословская, корп. 1 Смотреть на карте
Площадь: 109
Этаж: 1/25
- Характеристики
- Общая площадь, м² 109
- ВходС улицы
- Высота потолков, см 300
- Возможное использованиеЛюбой
Офисное
Торговое
Складское
Аптека
Салон красоты
Бар
Банк - ОкнаВитрины
- КоммуникацииЦентральные
- Эл. мощность (кВт)27
- ГотовностьГотово к въезду
- Корпус1
- СостояниеГотово к въезду
- Тип парковкиНаземная
- Категория коммерческой недвижимостиПомещение свободного назначения
- Информация о доме
- РасположениеСанкт-Петербург
- УлицаБогословская
- До метро, пешком, мин.25
- До метро, транспортом, мин.20
- РайонКалининский
- МетроЛесная
- МетроПлощадь Мужества
- Удалённость от МКАД/КАД/Города (км)7
- Этаж1
- Тип зданияЖилой дом с коммерческими помещениями
- Этажность25
- Материал стенМонолит
- Год постройки2 018
Дополнительно
- Первая линия
- Супермаркет
- Доступ для клиентов
- Доступ 24 часа
- Отопление
- Отдельный вход
- Применяется УСНО
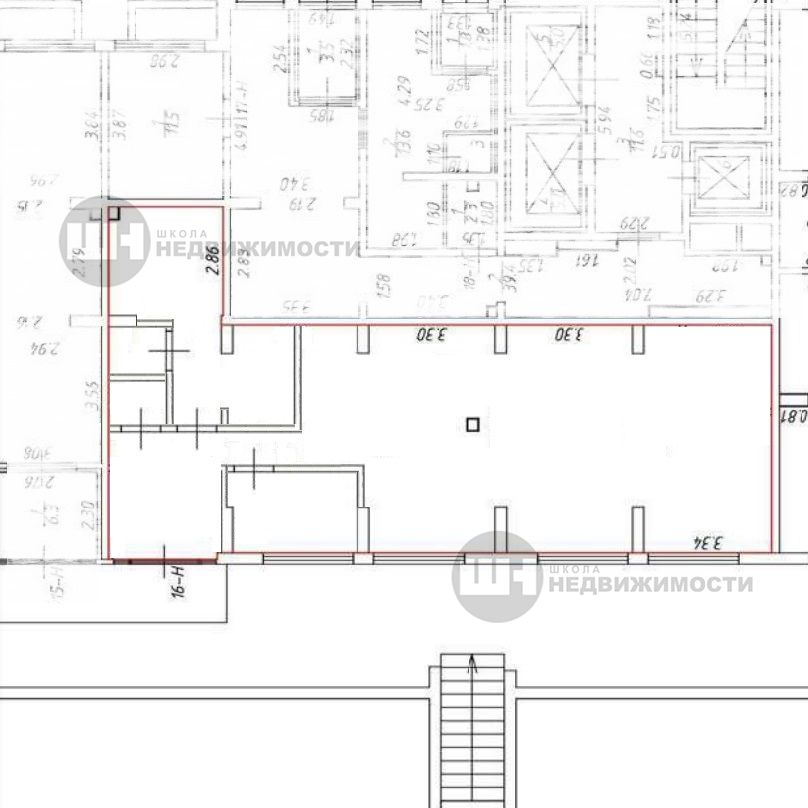
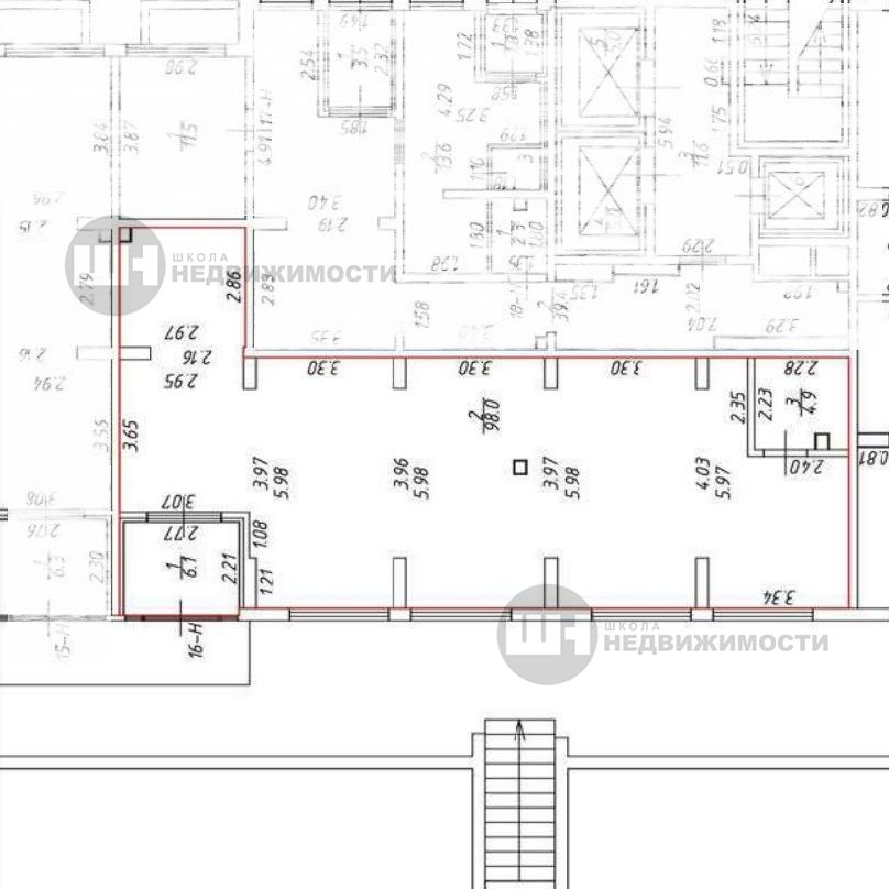
Описание
Продается коммерческое помещение свободного назначения с Арендатором
Помещение окружено плотной высокоэтажной жилой застройкой (ЖК Калейдоскоп)
Помещение правильной формы, имеет отдельный вход и большие витринные окна.
Общая площадь 109 м2, потолки 3 метра.
Оснащено всеми центральными коммуникациями.
Перед помещением большой открытый паркинг.
Помещение более трех лет занимает фитнесс студия (небольшая сеть).
Расположение
Санкт-Петербург, р. Калининский, ул. Богословская, корп. 1
Коммерческое помещение, 109.0 м²
Санкт-Петербург, р. Калининский, ул. Богословская, корп. 1 Смотреть на карте
Площадь: 109
Этаж: 1/25
5.0
Олег Румянцев
знает всё об этом объекте +7 (812) 6422570 Звоните или оставьте номер,я перезвоню Записаться на просмотр
Не нашли
подходящий вариант?























