Продается ПСН в 10 минутах пешком от Сенной площади
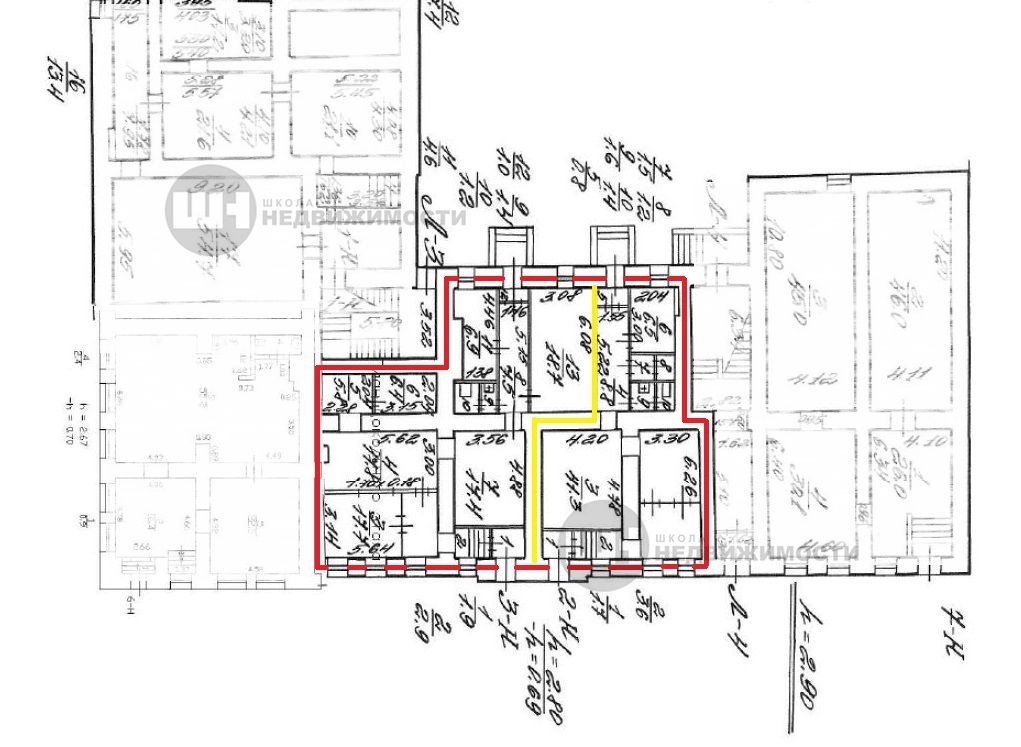
Помещение 171 м2 находится на первой линии по пр. Римского-Корсакова
На цокольном этаже жилого дома. Помещение имеет 4 отдельных входа (2 выходят на улицу и 2 во двор).
Также на фасад выходят 7 витринных окон.
Помещение оснащено центральными коммуникациями.
Помещение разделено под трех арендаторов:
магазин женской одежды, секонд-хенд и ПВЗ ОЗОН
Окупаемость с учетом потенциала АП 10-11 лет.











