~Загородный дом с участком 10 сот. в соснах~
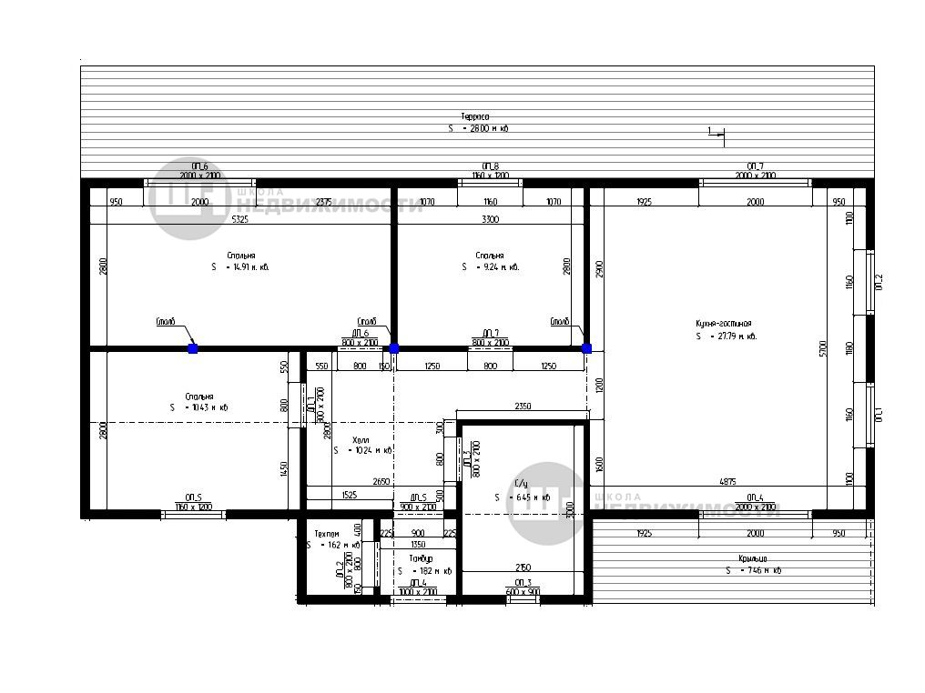
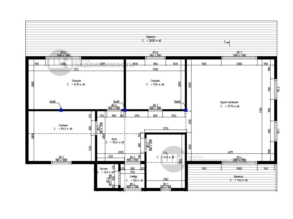
Жилая площадь дома 69 м², с террасами 112м²
Дома строятся по финской технологии на фундаменте из ЖБИ
Кровля - металлочерепица, окна - зимние, энергосберегающие
Дом с качественной чистовой отделкой на выбор, панорамным остеклением, большими террасами и всеми внутренними коммуникациями
Мы предлагаем на выбор различные виды планировок, в зависимости от желания покупателя
Мы выполняем:
- разводку электричества, устанавливаем светильники, розетки, выключатели
- разводку труб и готовим выводы под сантехнику
- теплые полы во всем доме
Описание комплектации:
- заведение воды в дом
- септик с подключением и установкой
- фундамент на бетонных сваях
- утепление 150мм
- кровля - металочерепица
- окна и входная дверь - стеклопакеты
- натяжные потолки с светильниками
- стены внутри - гипсокартон, отделка - покраска (или на имитацию бруса на выбор)
- стены снаружи - имитация бруса
- две террасы открытые
- напольное покрытие - ламинат
- электрика, щиток, розетки, выключатели, лампы
- разрешение на строительство
Не входит:
- бурение скважины
- сантехника
- двери межкомнатные вы покупаете сами - мы бесплатно устанавливаем
Гарантия на работу 10 лет
*ЗВОНИТЕ*
















