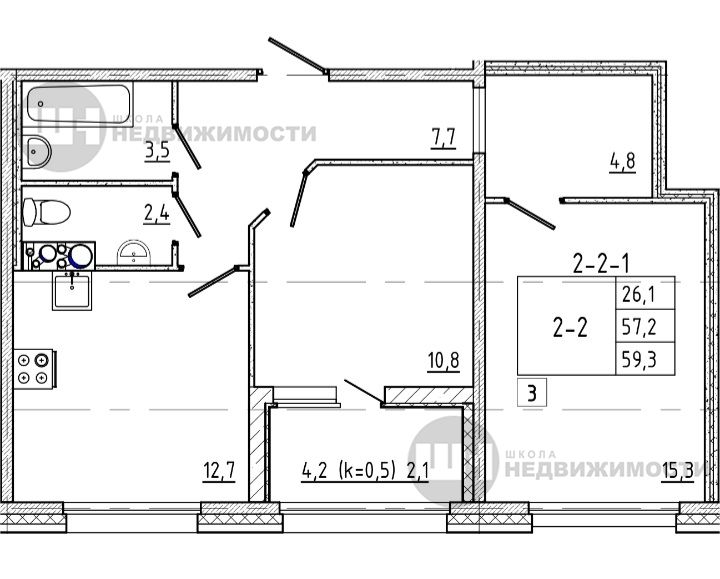
2-к квартира, 59.6 м², 1/10 эт.
ХАРАКТЕРИСТИКИ КВАРТИРЫ: - Кухня-гостиная - 12,7 м² - Изолированная спальня - 10,8 м² - Большая комната - 15,3 м² Жилой комплекс ЖК «Domino» – жилой комплекс класса бизнес-лайт, расположенный в исторической части Приморского района. Сочетание минималистичных архитектурных линий, современных технологий, инфраструктуры и высокий уровень комфорта и уюта. На территории жилого комплекса запланированы благоустроенные зоны отдыха для взрослых и детей, амфитеатр, а также велодорожка и спортивная площадка. Встроенные коммерческие помещения будут расположены в секциях 4-6. Вокруг жилого комплекса уже развитая инфраструктура: рядом расположены театры, музеи, магазины, кафе, школы, детские сады.В комплексе будет закрытый двор без машин. Охраняемая территория и круглосуточное видеонаблюдение с диспетчерской службой. Для жителей предусмотрен подземный паркинг на 82 машино-места, а также наземная автостоянка на 137 машино-мест.В Бесплатное юридическое сопровождение и помощь в одобрении ипотеки ***ЗВОНИТЕ, отвечу на ваши вопросы***











