Просторная двушка в Московском районе.
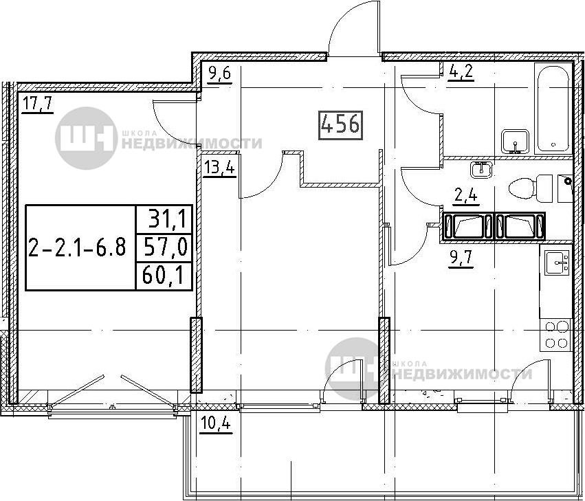
В продаже просторная двухкомнатная квартира общей площадью 60.1 квадратных метра с удобной планировкой, высокими потолками и просторным балконом в жилом комплексе бизнесс-класса «Квартал Che». ДОМ СДАН! Комплекс расположен в исторической части Санкт-Петербурга, у Московских ворот. В непосредственной близости находятся крупные городские магистрали и остановки общественного транспорта. Вся необходимая инфраструктура — в шаговой доступности. В 10 минутах пешком расположена станция метро Московские ворота. На первых этажах спроектированы коммерческие помещения. Для автовладельцев предусмотрен наземный паркинг на 700 машиномест, а также два полуподземных ещё на 300 мест. Все дома в квартале имеют закрытый охраняемый двор без машин. В комплексе есть два собственных детских сада. На территории установлены детские площадки, спортивные уголки, зоны отдыха с лавочками и зелёными насаждениями. Подходит под семейную и IT ипотеку. Понравилась квартира? ЗВОНИТЕ, с радостью отвечу на все вопросы.



