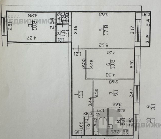
Семейный вариант — просторная 4-комнатная квартира площадью 72,9 кв.м с изолированными комнатами правильной формы!
Две спальни полностью отремонтированы в 2024 году, квартира светлая, уютная, в хорошем жилом состоянии.
Преимущества квартиры:
• Рациональная планировка с узаконенной перепланировкой. Изолированные спальни площадью 17,8, 13,8 и 10,8 кв.м — личное пространство для каждого
• Просторная кухня-гостиная 14,9 кв.м — идеальное место для семейных встреч, уютных ужинов и отдыха
• Удобный коридор с нишей для хранения и вместительными шкафами
• Балкон, добавляющий дополнительный комфорт.
Развитая инфраструктура района:
• В шаговой доступности супермаркеты «Народный», «Июнь», «Перекрёсток», продуктовые магазины, рестораны и кафе — всё необходимое под рукой
• Образовательные учреждения: музыкальная школа №41, школы №181 и №192 с удобной транспортной доступностью
• Медицинские учреждения: городская поликлиника №120, детская поликлиника №66, травмпункт и медцентр
• Спортивные объекты: центр «Физкультура и Здоровье», ледовая арена, каток, кёрлинг-клуб, тренажёрные залы и фитнес-клубы
• Культурно-досуговые центры: Дворец детского и юношеского творчества на Ленской с разнообразными кружками, Дом молодёжи «Квадрат», бильярдный клуб, библиотека «КиТ», «БКЦ Нота»
• Зеленые зоны рядом: Ладожский парк и парк Малиновка — отличное место для прогулок и семейного отдыха
Звоните прямо сейчас, чтобы узнать подробности и записаться на просмотр!




































