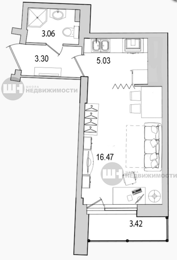
В продаже студия общей площадью 31,3 м²
хороший вариант для жизни и инвестиций
*Никто не зарегистрирован
*Быстрый выход на сделку
*Без обременений
- Жилая площадь - 16,3 м²
- Кухня - 5,1 м²
- Лоджия - 3,4 м²
- Совмещенный санузел - 3,2 м²
- Прихожая - 3,3 м²
Окна выходят на улицу
Высота потолка - 2,75 м
О ДОМЕ:
- Грузовой и пассажирский лифт
- Закрытая территория
- Видеонаблюдение
- Многоуровневая система доступа в ЖК
- Подземный паркинг
- Закрытый двор
- Детские и спортивные площадки
ИНФРАСТРУКТУРА:
- В пешей доступности парк Сосновка и Муринский парк.
- В пешей доступности магазины, аптеки, почта, поликлиники детские и взрослые с отделениями скорой помощи, АЗС, ТРЦ, кинотеатры, гипермаркеты
- Школы и детские сады
- Зеленая зона с местами для отдыха
- В близи велодорожки, спортивные и детские площадки, физкультурно-оздоровительный центр с бассейнами
ТРАНСПОРТНАЯ ДОСТУПНОСТЬ:
- Хорошо развитая транспортная доступность
- м. проспект просвещения 20 мин пешком и гражданский проспект в пешей доступности
- Удобный выезд на КАД в нескольких минутах
- Рядом с ЖК остановка общественного транспорта
Помощь в одобрении ипотеки и сопровождении сделки.
Звоните, отвечу на все вопросы.











