Продаётся 2 этажа+подвал в жилом доме на оживленном Большом проспекте ВО.
Активный пешеходный трафик.
300м до м. Горный институт, остановка общественного транспорта.
Сейчас помещение снимает Банк ВТБ (до ноября 2025г.).
Сделан дизайнерский ремонт, все коммуникации современные.
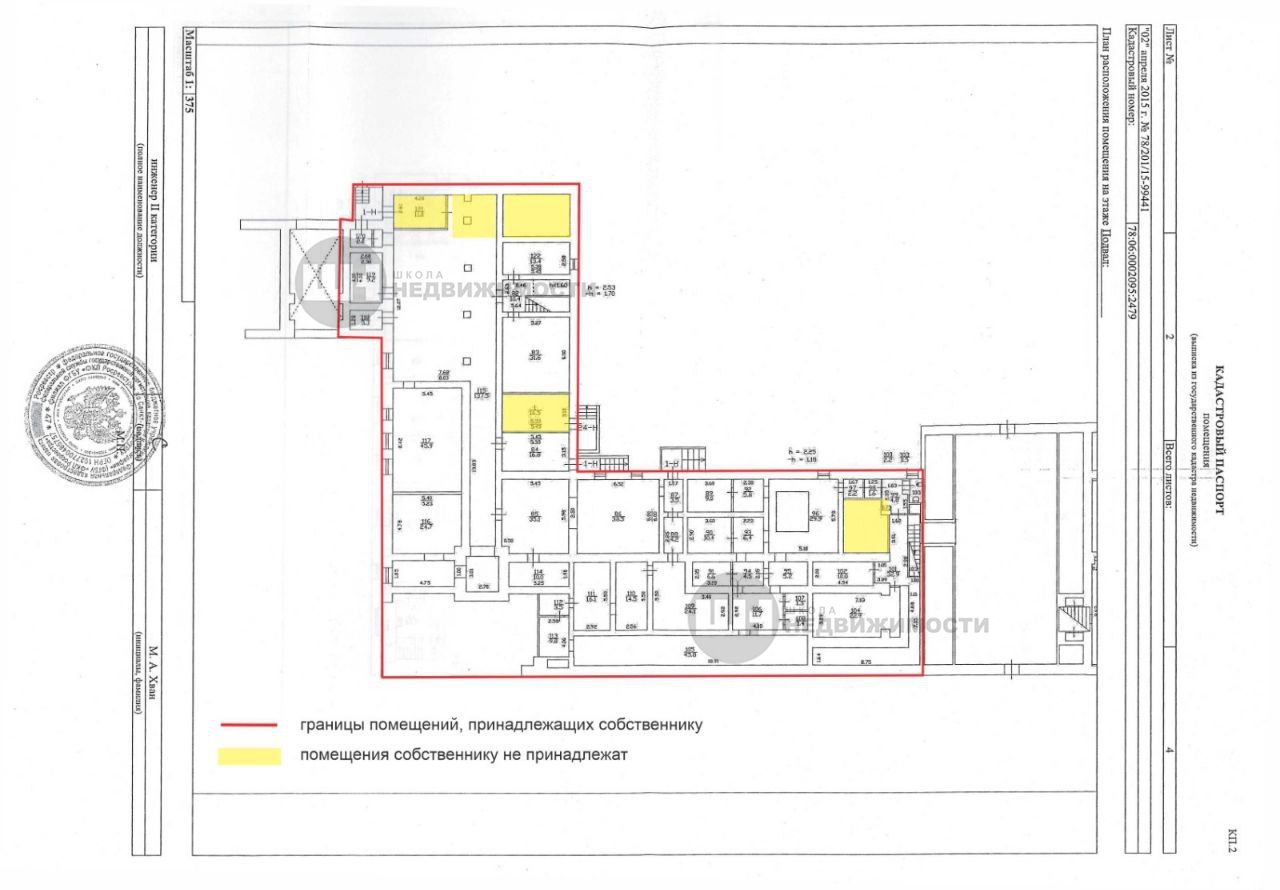
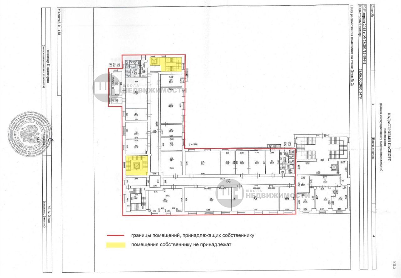
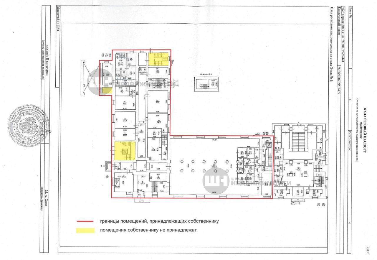
Общая площадь 1563м.
Первый этаж: большой холл и кабинеты, с/у. 2 входа с улицы и 1 вход со двора. Потолки 4,5м.
Второй этаж: кабинеты, кухонная зона, с/у. Выход во двор через пожарные лестницы (2 балкона). Потолки 3м.
Подвал: сухой, разделен на отдельные помещения. Есть заглушенный бассейн и сауна. Подходящее место для хранения. 3 выхода во двор. Потолки 2-2,5м.
Стены-кирпич, перекрытия - жб.
Помещение имеет 2 парковочных места во дворе + рядом со входом небольшой скверик с бесплатными местами для авто.
Есть несколько вариантов использования помещения:
- отдать 2 этажа с подвалом одному арендатору с бизнесом в этих сферах: банк, ресторан, клуб, гостиница, коворкинг.
- разделить и сдать в аренду по этажам: 1 этаж с отдельным входом занимает бизнес (банк, ресторан, магазин). 2 этаж с отдельным входом арендует гостиница/апартотель.
- выделить отдельно подвал и сдать его местным жителям в аренду под места для бытового хранения, организовать детский бассейн или спа-центр. Со своими отдельными входами со двора.
Покупателю предлагаем заключить договор управления объектом с нашим агентством.
Это позволит получать прибыль от аренды, не занимаясь поиском арендаторов, согласованием ставок и решением бытовых вопросов.
По договору управления мы обеспечиваем заполняемость арендаторами и решение всех вопросов с ними, с коммунальщиками и проверяющими органами.
Запись на просмотр за 3 дня для согласования с арендатором.















